Products
Easy Electric independently produces and also integrates more than 90% of the insulator manufacturers’ products from China
|
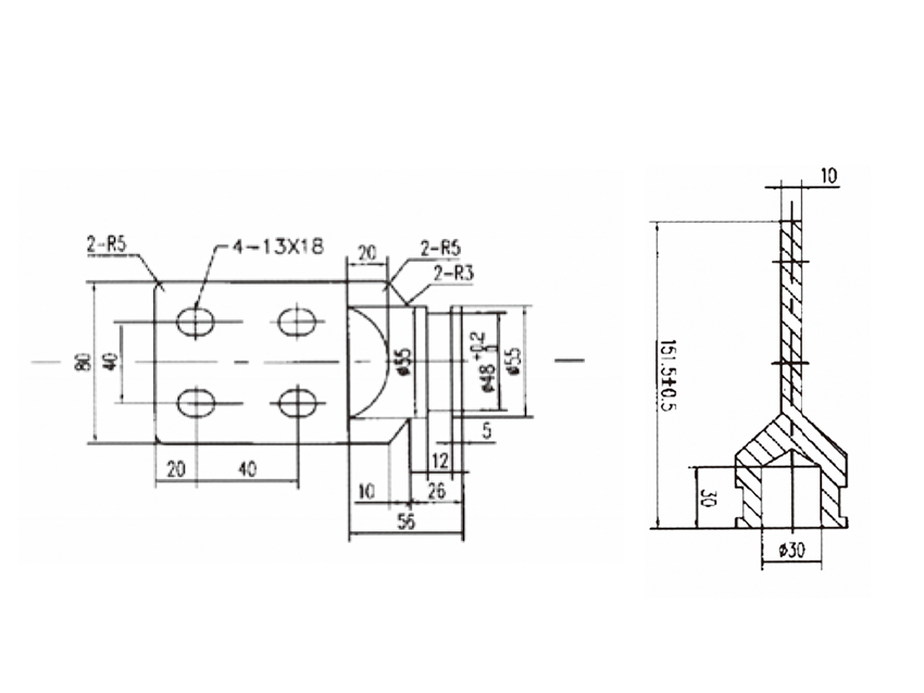
ZN85-40.5/1600A isolated contacts
Collect
|
